VILLETTA D'ANGOLO CON MINI APPARTAMENTO e GIARDINO

In vendita
Villetta schiera
Reggio nell'Emilia (Ghiarda)
327.000 €
Descrizione
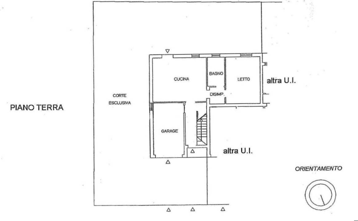
V03/Vg - SAN RIGO: Una soluzione indipendente terra/cielo con un mini appartamento al piano terra? Questa villetta d'angolo con giardino privato di circa 180 mq può essere la soluzione alle vostre esigenze. La casa è ben mantenuta, già abitabile e disposta su 3 livelli.
Un bilocale al piano terra garantisce la possibilità di indipendenza per un figlio o un familiare, è presente un soggiorno con angolo cottura, una matrimoniale ed un bagno. L'abitazione principale si sviluppa al piano superiore dove si trova un salone con loggia vivibile, cucina abitabile con seconda loggia e un bagno. Il reparto notte prevedeva le due camere e mezzo, attualmente la suddivisone è stata riadattata e sono state create due ampie camere matrimoniali entrambe con loggia e un bagno. L'immobile è completo di autorimessa singola e posto auto interno, le utenze sono autonome ed è accessoriato con inferriate al piano terra, irrigazione automatica, predisposizione canna fumaria, tetto in legno a vista, climatizzatore.
Caratteristiche principali
Codice:
V03/Vg
Città:
Reggio nell'Emilia (Ghiarda)
Categoria:
Villetta schiera
Spese condominiali:
100 € / anno
Locali:
4
Camere:
3
Bagni:
3
Mq:
190
Box:
1
Posti auto:
1
Mq Giardino:
180
Balconi:
6
Anno:
2006
Classe energetica:
In fase di valutazione
Stato Immobile:
Buono
Grado:
Medio
Orientamento:
Nord Est Sud
Lati Liberi:
3
Giardino:
Privato
Arredi:
Non Arredato
Tipo Soggiorno:
Doppio
Tipo Cucina:
Abitabile
Riscaldamento:
Autonomo
Tipo Riscaldam.:
Caldaia
Tipo Impianto:
Radiatori
Fonte Energetica:
Metano
Acqua Calda:
Autonoma
Raffrescamento:
Split
Infissi:
Legno Doppio Vetro
Serramenti:
Buono
Persiana:
Persiana Legno
Pavim. Giorno:
Ceramica
Pavim. Notte:
Parquet
Pavim. Cucina:
Ceramica
Pavim. Bagno:
Ceramica
Accessori
Aria Condizionata
Canna Fumaria
Cancello Elettrico
Doppi Vetri
Impianto Satellitare
Inferriate
Ingresso Indipendente
Lavanderia
Porta Blindata
Ripostiglio
Video Citofono
Richiedi informazioni
Invia
Cookie preference